Über uns
zurück zur Übersicht




Arbeitsweise

Dreh- und Angelpunkt ist die Darstellung im Plan. Dabei setzt ETM von Anfang an auf eine an die Projektanforderungen angepasste modellbasierte 3D-Planung. Für die gewerkeübergreifende Koordination mit allen Planungsbeteiligten ist die Arbeit im Modell die zukunftsfähige Methode. Auch in der Kommunikation und Abstimmung mit dem Bauherrn ist die 3D-Darstellung ein ausgezeichnetes Hilfsmittel. Es unterstützt bei der Visualisierung und ermöglicht so neue Blickwinkel, die neue Wege aufzeigen.

Bei den 3D-Inhalten handelt es sich um keine bloßen Visualisierungen, sondern um informationshaltige Bauteile. Aus den Modelldaten generieren wir Massenauszüge und Berechnungen. Diese Durchgängigkeit der Planung und Bündelung der Informationen ist die Zukunft der Planung und bei ETM praktizierte Gegenwart.

Bereits in der Entwurfsphase planen und entwickeln wir Regeldetails in einem hohen Detailierungsgrad. Dies erhöht in Bereichen mit Wiederholungsfaktor, wie zum Beispiel WC- und Erschließungskerne, die Planungs- und Ausführungssicherheit fachübergreifend für alle beteiligten Gewerke.

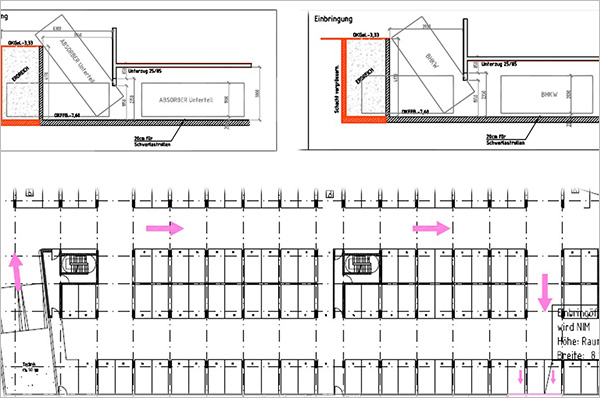
Als ein einfaches Beispiel für unseren vorausschauenden Blick auf mögliche Hindernisse dient die frühzeitige Planung der Einbringwege für u.a. Großkomponenten. Dies erschöpft sich nicht im Grundriss, sondern denkt bis zum Ende, inkl. der Schleppkurven und Kippmaße.

Der fachübergreifende Planungsansatz zeigt sich beispielhaft an einer BKT-Planung. Die mit der Statik abgestimmten Tabuzonen für Leitungsverlegungen werden in die Pläne eingetragen, so dass alle relevanten Informationen in einem Plan zusammen sind. Dies sichert die Durchgängigkeit von der Planung bis zur Ausführung auf der Baustelle.

